A-352 MGS Large Format Gantry System with Linear Motors
Robust Compact Design with Recirculating Ball Bearing Guides for High Load Capacity.
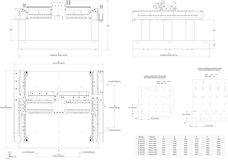
- XY gantry for overhead motion. Travel ranges to 1 m × 2 m
- Precision recirculating ball bearing guides
- Absolute encoder
- High-performance ironless linear motors
- Various travel ranges. Options and customized adaptations
- Flexible modular platform
Overview
The MGS gantry system has been designed to maximize throughput for applications requiring overhead motion. This stage is ideal for 3D printing, assembly, pick-and-place, alignment, inspection, and industrial automation applications.
The MGS uses preloaded linear mechanical bearings which are designed to provide optimized stiffness and precision. Optional stainless steel guide rails can be delivered.
The gantry axis incorporates dual linear motors and dual linear encoders. Ironless linear motors provide smooth motion and no cogging or attractive forces. The linear motor and linear encoders are noncontact devices, so there is no backlash, wear, or maintenance concerns.
The A-352 is coupled with industry-leading controllers and drive modules from ACS that offer superior servo performance, advanced control algorithms to improve dynamic performance and error compensation, and a wide suite of software development tools.
Options and customized adaptations
- Base made of granite
- Customizable work height
- Support stands with and without vibration isolation
- Additional drag chains
- Increased performance motors
- Liquid cooling of the linear motors
Application fields
Scanning, Digital printing, Electronics assembly and inspection, AOI (Automatic Optical Inspection), Automation.
Specifications
Specifications
Motion | Unit | Bridge axis | Gantry axis |
|---|---|---|---|
Travel range | mm | 750, 1000 | 750, 1000, 1500, 2000 |
Guide | Recirculating ball bearing guide (lubrication and surface finish can be customized) | ||
Drive | 1 × Ironless 3-phase linear motor | 2 × Ironless 3-phase linear motor | |
Measuring system | Absolute linear encoder, 1 nm sensor resolution, BiSS-C, steel measuring scale | 2 × Absolute linear encoder, 1 nm sensor resolution, BiSS-C, steel measuring scale | |
Max. load capacity | 30 kg | ||
Positioning accuracy, calibrated (1) | µm | ±2 | |
Bidirectional repeatability | µm | ±1 | |
XY orthogonality | µrad | 25 | |
Max. velocity, unloaded (2) | m/s | 2 | 1 |
Moved mass | kg | 4.5 | Depending on the travel range of the bridge axis: 750 mm: 65 kg 1000 mm: 80 kg |
Quote / Order
Ask for a free quote on quantities required, prices, and lead times or describe your desired modification.
How to Get a Quote
Ask an engineer!
Quickly receive an answer to your question by email or phone from a local PI sales engineer.











